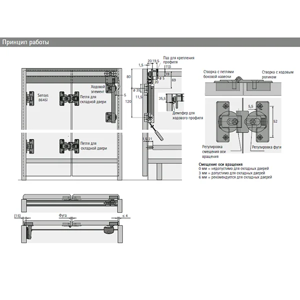
Фурнитура для системы складных дверей WingLine 230
Информация
Видео
Инструкции
Фильтры:
Артикул :
9278742
4 077.70 руб.
/шт
Артикул :
9117231
1 299.10 руб.
/шт
